Revitalisierung Wohnhaus
Kohlgasse, Wien
2007 - 2008

In Zusammenarbeit mit
Architekt Wolfgang Holzhacker, Wien


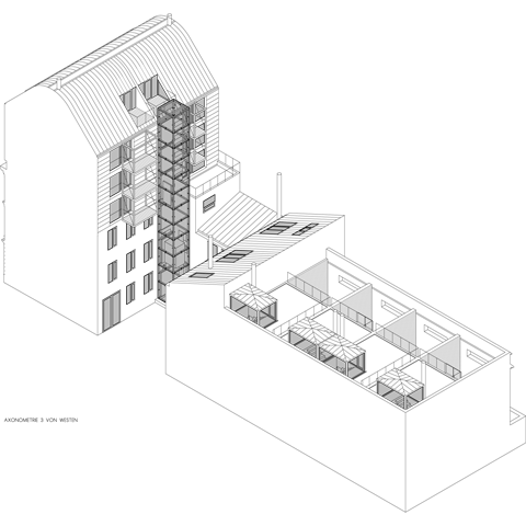
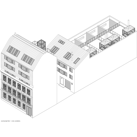
Aufstockung von 3 Geschossen
mit Errichtung eines Stahlglasaufzugs,
Dachausbau im Quergebäude,
Überbauung des ehemaligen Theatersaals mit 2-geschossigen Appartments mit Innenhöfen und Dachterrassen,
Bau einer Garage mit Doppelparksystem
.

Leistungsphasen:
Entwurfs- und Genehmigungsplanung,
Polier- und Detailplanung,
Ausschreibung und Vergabe.

 

<- vorheriges Projekt | nächstes Projekt ->